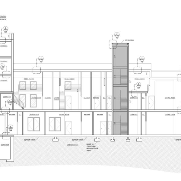
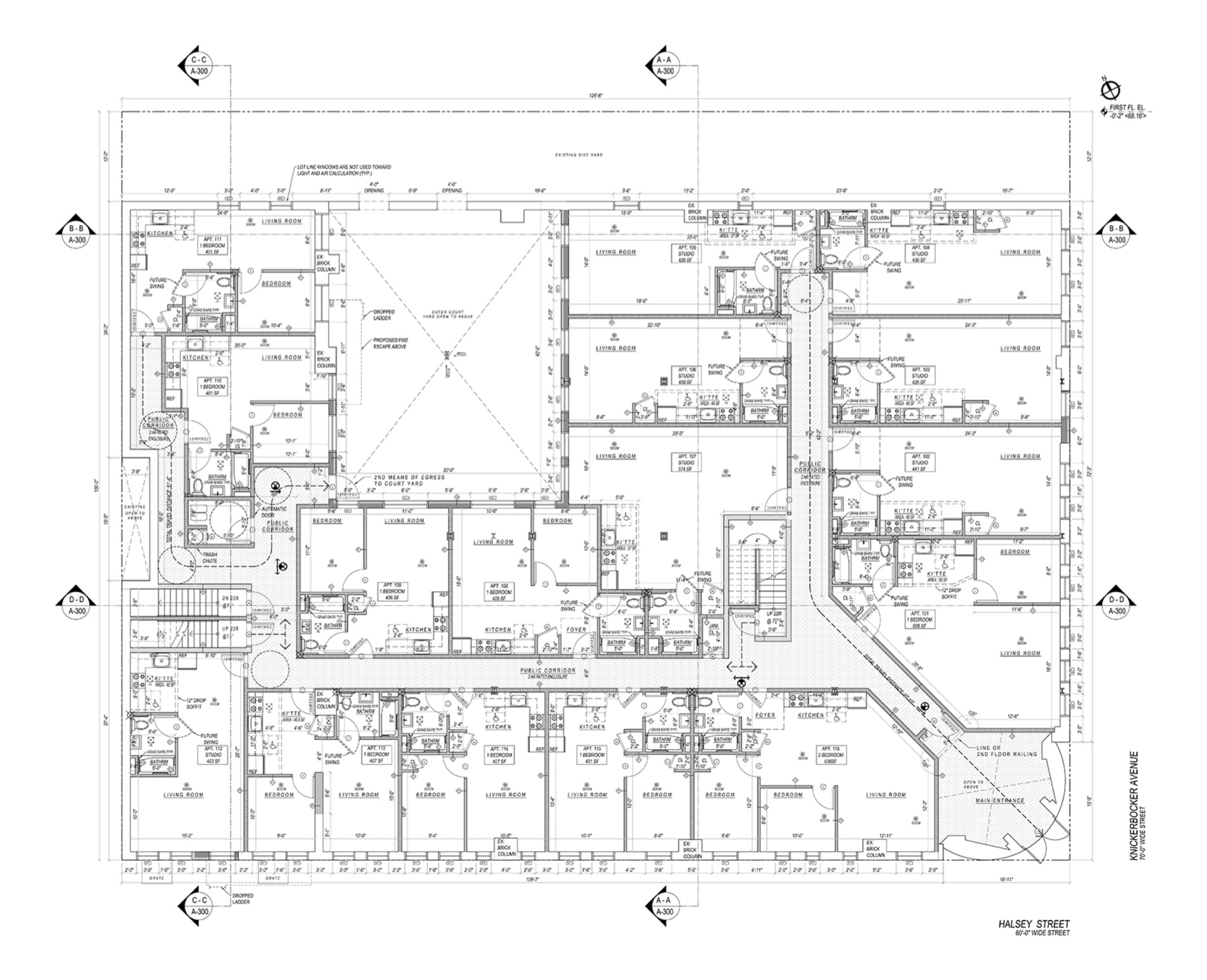
783 Knickerbocker Avenue

Situated in Bushwick, The Alhambra Theatre was originally designed and built in 1914 by Architect Arthur G. Carlson of Carlson & Wiseman. In the years since, it has undergone various transformations from supermarket to daycare center. This residential conversion strives to return the building to its former glory, stripping back the layers to reveal hints of the original design whilst bringing a modern twist. The new design brings approximately 40 new apartments to the area.