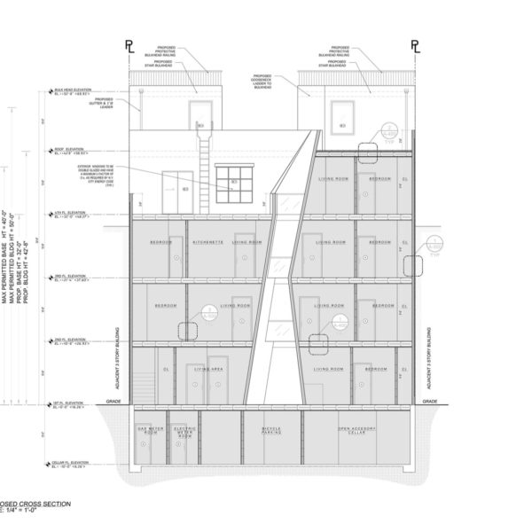
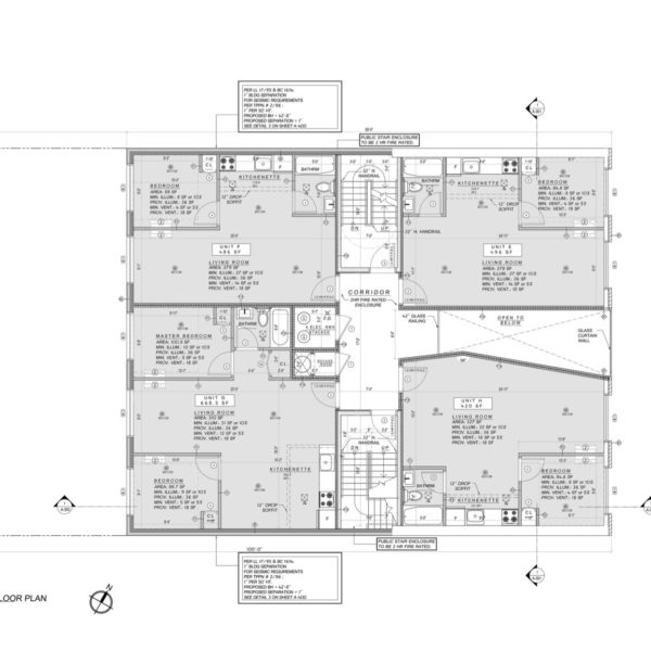
555 Graham Avenue

Located in Greenpoint, this project brings new loft-like apartments to this rapidly evolving part of New York. Its design features an entrance atrium which cuts through all levels opening up to the sky. The severe angles it is composed of creates a sense of movement through its manipulation of light filtering through each level. This interstitial space allows for an integration of the formal and informal programs of the art community, inviting a transient gallery to grow organically along the walls. Clad in glass, this moment is translated to the exterior in a sharp collision with the brick facade.